Zähleranschlußsäule eon Bayern (1Zähler ohne TSG)l mit HAK Gr.2, 150mm²
Auf Lager
Bestellnummer
02.88.1P11HAK2
Ausschreibungstexte für GSAB-Säulenprogramm
Zähleranschlusssäule 1 Zähler,mit Ausbaumöglichkeit
Gehäuse aus glasfaserverstärkten, hochschlagfesten, wärmebeständigen, selbstverlöschenden Polyester, durchgefärbt ähnlich RAL 7035 – grau - ,
mit einer Tür , 3-Punkt-Stangenschloß mit Doppel- oder Einfachschließanlage.
Ein Profilzylinder eingebaut und einem Platz für den Profilzylinder des Netzbetreibers.
Waagerecht eingebautes Schließsystem ermöglicht werkzeuglosen Türanschlagwechsel.
Bei Doppelschließsystem erfolgt die Verriegelung mit einem Profilzylinder unabhängig vom zweiten. Wetterschutzabdeckung der Profilzylinder aus besonders verstärktem Zinkdruckguss verhindert Vandalismusschäden.
Zur Transporterleichterung werden Gehäuse und Sockel getrennt geliefert.
Passende Sockel 88SE (Eingrabsockel) oder 88SB (zur Aufbodenmontage);
Montage zur Säule erfolgt mittels beiliegender C-Profilschiene (konisch) aus hochfestem Federstahl. Millimetergenaue Zentrierung des Gehäuseoberteils erfolgt durch angeformte Zentrierbolzen auf dem Sockel. Mechanisch geprüft nach EN 61439.5 (Kabelverteilersäulen im öffentlichen Versorgungsbereich).
Sechs durchlaufende Befestigungsleisten bis in den Sockelbereich mit 552 Befestigungspunkten ermöglichen
die individuelle Befestigung der Montageplatte, Einbaufelder oder Sammelschienen.
Bei der Ausführung der Säule mit Schutzart IP44 befinden sich die Zuluftschlitze in der Sockel-Schrank-Verbindung.
In der Rückwand der Säule sind im oberen Bereich die Abluftschlitze labyrinthartig und stochersicher ausgeführt.
Schaltplantasche in der Türinnenseite angeschraubt.
Material: nach DIN 16913 ,glasfaserverstärktes Polyester,(SMC) nach IEC-695-2-1 halogenfrei, verrottungsfest, beständig gegen chemische Einwirkungen.
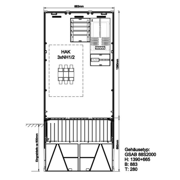
Maße: Höhe 1710mm mit Sockel
Breite 883 mm
Tiefe 280 mm
Schutzarten: Gehäuse IP 44
Ausführung: Nach TAB „Bayernwerk AG“ (oder TAB-gleiche Stadtwerke) für einen Zähler mit Ausbaumöglichkeit
Bestückt mit: Hausanschlusskasten 3xNH1/2 bis 150mm²
4-Leiter-Sammelschienensystem 250A vorb. zum Einbau von SH-Schaltern
1xZählerfeld nach DIN 43870 450mm
5-Leiter Verdrahtung DIN 43870-C H07V-K 10mm²
1xHLAKL 25mm², 5pol
Fabrikat : GSAB
Typ: 02.88.1P11HAK2
oder gleichwertig
Bezugsquelle: Internet www.gsab.de
E-Mail: vertrieb@gsab.de
Fax: 03636-761430
Sockelfüllmaterial (Blähtonkugeln), Gitterbodenplatte (nur bei Nutzung als Erder erforderlich) in Zubehörliste.
Zähleranschlusssäule 1 Zähler,mit Ausbaumöglichkeit
Gehäuse aus glasfaserverstärkten, hochschlagfesten, wärmebeständigen, selbstverlöschenden Polyester, durchgefärbt ähnlich RAL 7035 – grau - ,
mit einer Tür , 3-Punkt-Stangenschloß mit Doppel- oder Einfachschließanlage.
Ein Profilzylinder eingebaut und einem Platz für den Profilzylinder des Netzbetreibers.
Waagerecht eingebautes Schließsystem ermöglicht werkzeuglosen Türanschlagwechsel.
Bei Doppelschließsystem erfolgt die Verriegelung mit einem Profilzylinder unabhängig vom zweiten. Wetterschutzabdeckung der Profilzylinder aus besonders verstärktem Zinkdruckguss verhindert Vandalismusschäden.
Zur Transporterleichterung werden Gehäuse und Sockel getrennt geliefert.
Passende Sockel 88SE (Eingrabsockel) oder 88SB (zur Aufbodenmontage);
Montage zur Säule erfolgt mittels beiliegender C-Profilschiene (konisch) aus hochfestem Federstahl. Millimetergenaue Zentrierung des Gehäuseoberteils erfolgt durch angeformte Zentrierbolzen auf dem Sockel. Mechanisch geprüft nach EN 61439.5 (Kabelverteilersäulen im öffentlichen Versorgungsbereich).
Sechs durchlaufende Befestigungsleisten bis in den Sockelbereich mit 552 Befestigungspunkten ermöglichen
die individuelle Befestigung der Montageplatte, Einbaufelder oder Sammelschienen.
Bei der Ausführung der Säule mit Schutzart IP44 befinden sich die Zuluftschlitze in der Sockel-Schrank-Verbindung.
In der Rückwand der Säule sind im oberen Bereich die Abluftschlitze labyrinthartig und stochersicher ausgeführt.
Schaltplantasche in der Türinnenseite angeschraubt.
Material: nach DIN 16913 ,glasfaserverstärktes Polyester,(SMC) nach IEC-695-2-1 halogenfrei, verrottungsfest, beständig gegen chemische Einwirkungen.
Maße: Höhe 1710mm mit Sockel
Breite 883 mm
Tiefe 280 mm
Schutzarten: Gehäuse IP 44
Ausführung: Nach TAB „Bayernwerk AG“ (oder TAB-gleiche Stadtwerke) für einen Zähler mit Ausbaumöglichkeit
Bestückt mit: Hausanschlusskasten 3xNH1/2 bis 150mm²
4-Leiter-Sammelschienensystem 250A vorb. zum Einbau von SH-Schaltern
1xZählerfeld nach DIN 43870 450mm
5-Leiter Verdrahtung DIN 43870-C H07V-K 10mm²
1xHLAKL 25mm², 5pol
Fabrikat : GSAB
Typ: 02.88.1P11HAK2
oder gleichwertig
Bezugsquelle: Internet www.gsab.de
E-Mail: vertrieb@gsab.de
Fax: 03636-761430
Sockelfüllmaterial (Blähtonkugeln), Gitterbodenplatte (nur bei Nutzung als Erder erforderlich) in Zubehörliste.