Der Shop wird nicht richtig funktionieren, wenn Cookies deaktiviert sind.
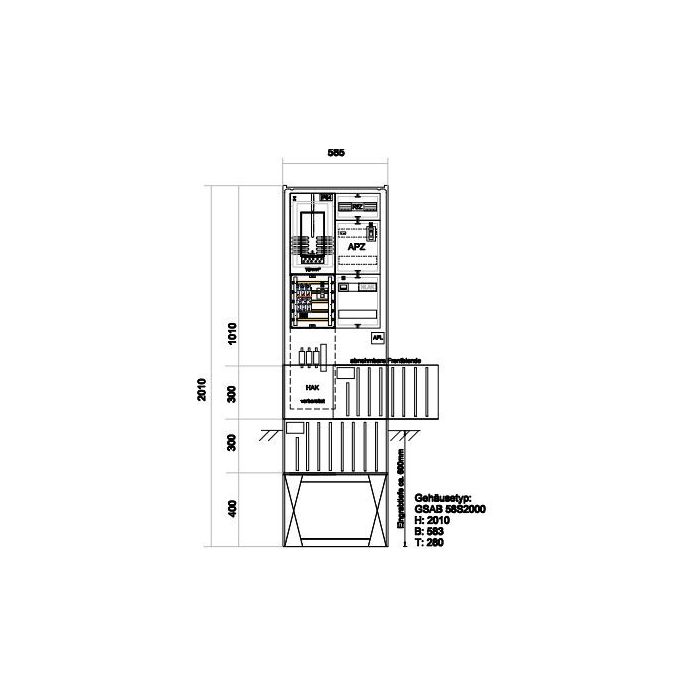
Zähleranschlußsäule Mitteldeutschland (1Zähler ohne TSG) – mit APZ und RfZ für steuerbare Verbraucher
Auf Lager
Bestellnummer
03.00.1P11APZRfZ
Zähleranschlußsäule Mitteldeutschland (1Zähler ohne TSG) – mit APZ und RfZ für steuerbare Verbraucher
© 2025 GSAB Elektrotechnik GmbH - Alle Rechte vorbehalten.