Der Shop wird nicht richtig funktionieren, wenn Cookies deaktiviert sind.
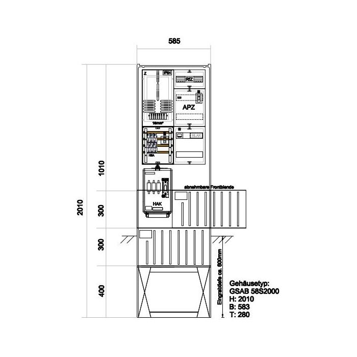
Zähleranschlußsäule N-ergie (1Zähler ohne TSG) – mit APZ und RfZ für steuerbare Verbraucher
Auf Lager
Bestellnummer
04.00.1P11APZRfZ
Zähleranschlußsäule N-ergie (1Zähler ohne TSG) – mit APZ und RfZ für steuerbare Verbraucher
© 2025 GSAB Elektrotechnik GmbH - Alle Rechte vorbehalten.