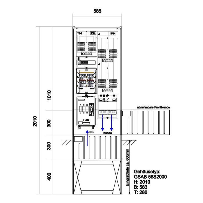
Zähleranschlußsäule Energienetz Mitte (2Zähler mit TSG) mit Heizungsschütz

Auf Lager
Bestellnummer
12.00.1P2H