Der Shop wird nicht richtig funktionieren, wenn Cookies deaktiviert sind.
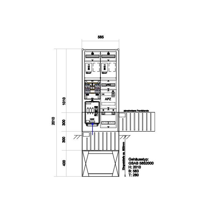
Zähleranschlußsäule LEW (2Zähler BKE-I) – mit APZ und RfZ für steuerbare Verbraucher
Auf Lager
Bestellnummer
33.00.1P21ezAPZRfZ
Zähleranschlußsäule LEW (2Zähler BKE-I) – mit APZ und RfZ für steuerbare Verbraucher
© 2025 GSAB Elektrotechnik GmbH - Alle Rechte vorbehalten.