Der Shop wird nicht richtig funktionieren, wenn Cookies deaktiviert sind.
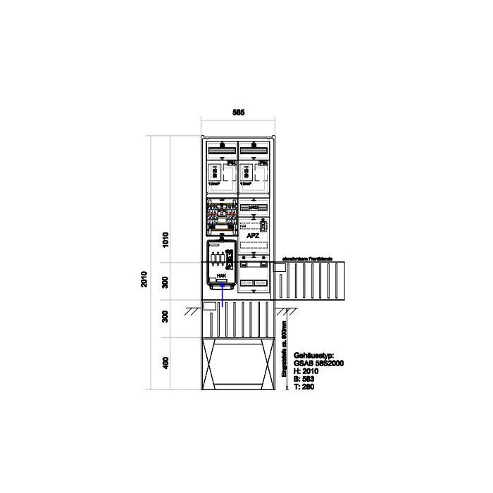
Zähleranschlußsäule EWE (2Zähler BKE-I) – mit APZ und RfZ für steuerbare Verbraucher
Auf Lager
Bestellnummer
39.00.1P21ezAPZRfZ
Zähleranschlußsäule EWE (2Zähler BKE-I) – mit APZ und RfZ für steuerbare Verbraucher
© 2025 GSAB Elektrotechnik GmbH - Alle Rechte vorbehalten.